The ZBA will be considering two requests. The first is asking for variance from the zoning ordinance for buildng a horse barn at a new home on west side of Sheldon between Mead and Snell. Below is the application. See details in the meeting packet pages 7-14 (link at end of this post).

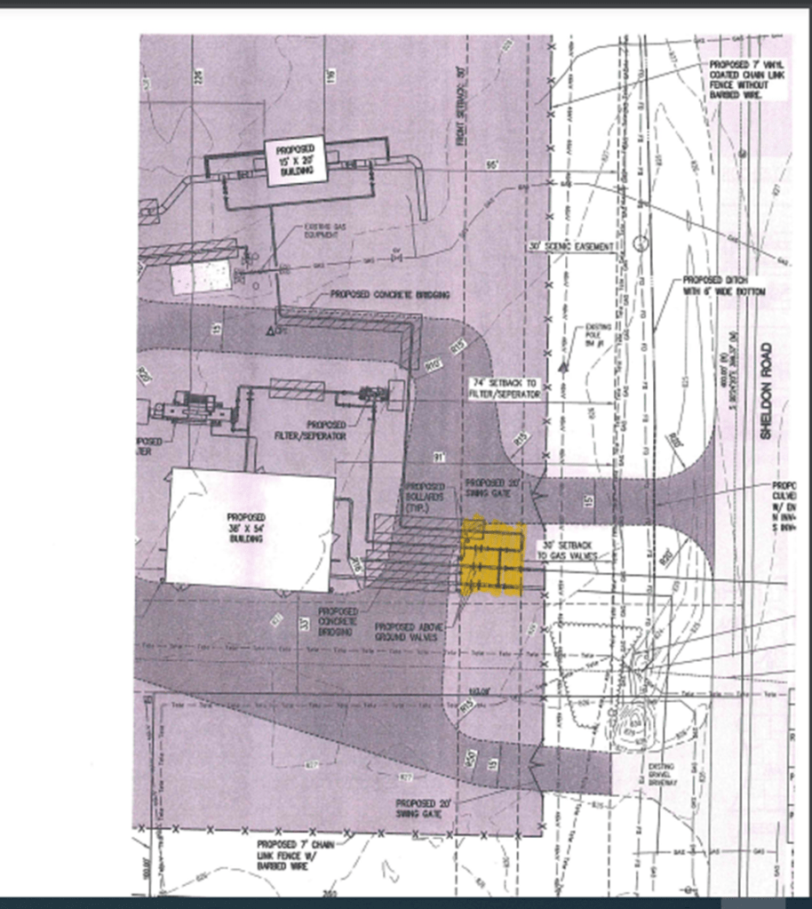
The second from Consumers Energy for gas piping on the west side of Sheldon, 550 feet north of Mead. See full details on pages 15-21 in the packet a link at end of this post.


Link to full meeting packet on Township website.